Zentrumsnahe, bezugsfertige 1,5-Zimmer-Wohnung
Zentrumsnahe, bezugsfertige 1,5-Zimmer-Wohnung
Eckdaten
- Art Etagenwohnung
-
Lage
Obere Krodostr. 37a
38667 Bad Harzburg - Miete zzgl. NK 367,00 €
- Warmmiete 577,00 €
- Nebenkosten 210,00 €
- Wohnfläche ca. 45 m²
- Zimmer 2
- Etage 1
- Heizungsart Zentralheizung
- Kaution 734 €
- Ausstattung des Bades Badewanne
- Zustand Vollständig renoviert
- Immobilien-ID 20521
Immobilie
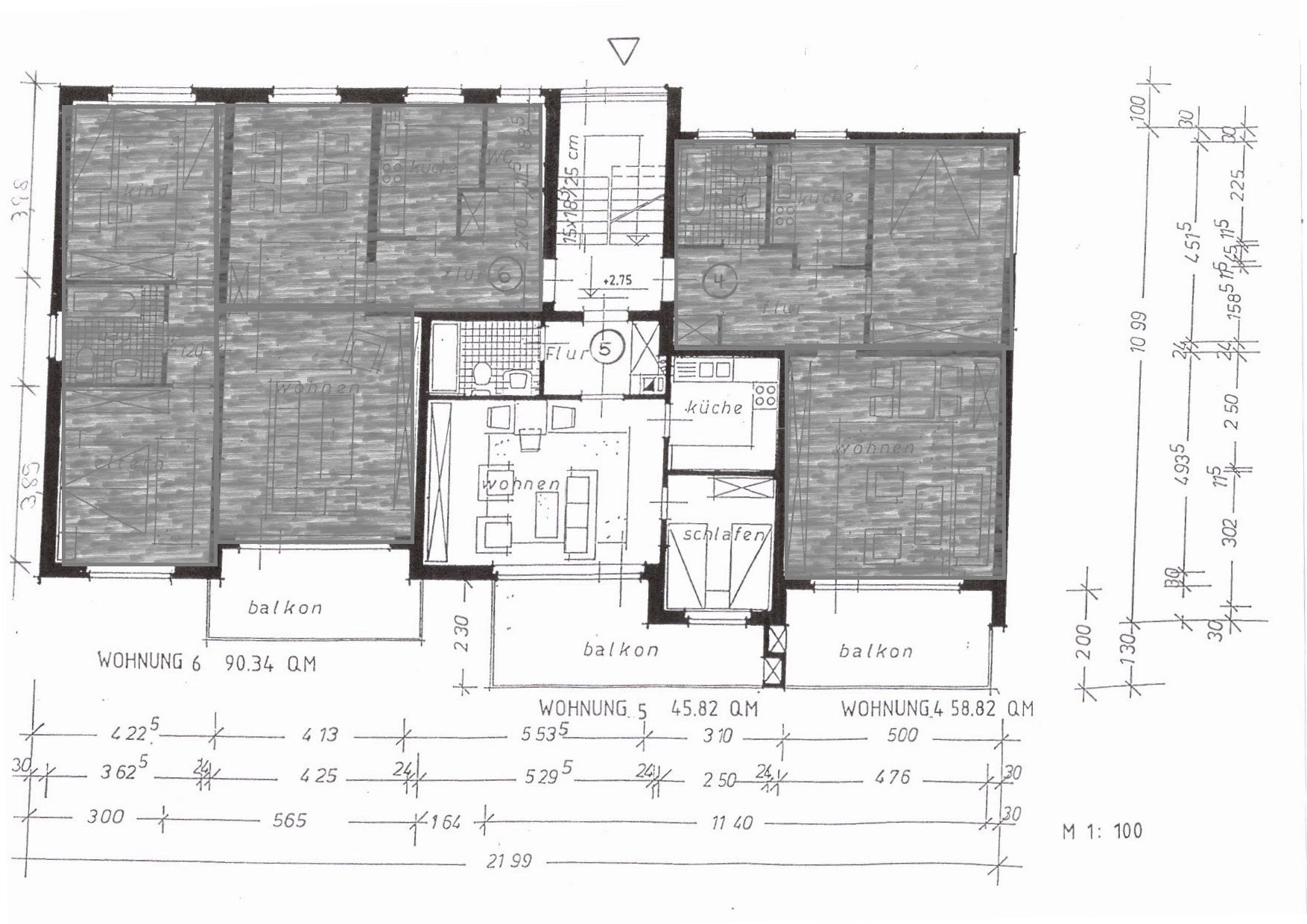
Diese -1,5-Zimmer-Wohnung befindet sich im 1. OG eines 8-Familienhauses in ruhiger Lage in der Oberen Krodostr. 37a.
Die Wohnung wird renoviert übergeben.
Mindestmietdauer 18 Monate.
Aufgrund der Mindestmietzeit kann nicht an Auszubildende oder
Studenten vermietet werden. Hier ist rechtlich kein Mietvertrag
mit einer Mindestmietzeit möglich.
Eine Vermietung erfolgt an max. 1 Person. Ein unbefristetes Arbeitsverhältnis ohne Probezeit sollte vorhanden sein.
Die Vorlage eines Schufa-BonitätsCheck`s ist vor der Anmietung erforderlich.
Die Haltung von Hunden und Katzen ist nicht gestattet.
Vom Flur erreichen Sie das innenliegende Bad mit Badewanne und das Wohnzimmer mit Zugang zum Süd-Ost-Balkon (ca. 8 m²). Vom Wohnzimmer besteht ein Zugang zum Schlafzimmer (ca. 7,5 m²) und der innenliegenden Küche mit Ablüfter. Es ist keine Einbauküche vorhanden.
Eine Münzwaschmaschine in der Waschküche kann genutzt werden.
Für die notwendige Wärme in der Wohnung sorgt eine Gaszentralheizung. Die Warmwassererzeugung im Bad erfolgt über einen Durchlauferhitzer und in der Küche über einen Unterbauwarmwasserbereiter.
Die gewohnten TV-Programme empfangen Sie über Kabel-TV (Anmeldung durch den Mieter).
Die Nebenkosten inkl. Heiz- und Wasserkostenabschlag betragen 210,- Euro. Strom wird vom Mieter direkt mit dem Versorger abgerechnet.
Lage
Ausstattung
Sonstiges
Alle Angaben sind ohne Gewähr und basieren ausschliesslich auf Informationen, die mir von unserem Auftraggeber übermittelt wurden.
Wir übernehmen keine Gewähr für die Vollständigkeit, Richtigkeit und Aktualität dieser Angaben. Irrtum und Zwischenverkauf vorbehalten.
Energieausweisangaben
- Enerigeausweistyp Verbrauchsausweis
- Energiekennwert 123 KWh(m²*a)
- Energieeffizienzklasse D
- Energieausweis erstellt am 11.04.2018
- Energieausweis gültig bis 10.04.2028
- Heizungsart Zentralheizung
- Befeuerung / Energieträger Gas
Weitere Informationen
Herzlichen Dank für Ihre Anfrage.
Wir werden diese so schnell wie möglich bearbeiten.
